Добро пожаловать на http://vipplan.ru

Випплан Саров - это тысячи проектов домов в нашем каталоге!

Вы всегда сможете найти для себя проект дома вашей мечты! Даже если этого не случилось, мы готовы в любую минуту предложить проект индивидуального дома.

Забыли пароль?
Вы еще не регистрировались?

Перейдите по ссылке ниже на страницу регистрации.

Регистрация...

Внимание!!!

В проектную документацию могут быть внесены изменения любой сложности, в соответствии в Вашими пожеланиями!

Полезные статьи

Проект дома

Строительство дома начинается с подготовительного этапа, основной частью которого является проект. Разработка дизайнерского проекта сопровождается оформлением документов после выбора участка....

Перекрытия в доме

Перекрытия – одно из важнейших составляющих строящегося дома. Это горизонтальная внутренняя защитная конструкция, разделяющая по уровню смежные помещения дома. По назначению выделяют подвальные, межэтажные и чердачные перекрытия. При проектировании домов и зданий различного назначения, требования к межэтажным перекрытиям определяются их местоположением и функциями разделяемых помещений: надподвальные, межэтажные, чердачные и т.д....

Проекты домов и коттеджей > Каталог проектов домов > Трехэтажный дом с террасами и эксплуатируемой кровлей Vg3199

Трехэтажный дом с террасами и эксплуатируемой кровлей Vg3199

Трехэтажный дом с террасами и эксплуатируемой кровлей
Зарегистрируйтесь

Проект № Vg3199


Техническое описание
Общая площадь: 411.73 м2
Жилая площадь: 159.35 м2
Высота здания: 12.63 м
Размеры дома: 25.07м×15.42м
Кол-во комнат: 4
Цокольный этаж: нет
Гараж: нет
Мансарда: нет

Kонструкция
Фундамент: монолитная плита
Перекрытия: монолитная плита
Материал стен: material_mon

Архитектурный раздел
Конструктивный раздел
Инженерный раздел
Смета на строительство
АР+КР - 100 000 (Со скидкой 20%)
АР+КР+ИР - 244 200 (Со скидкой 50%)
Трехэтажный дом с террасами и эксплуатируемой кровлей с размерами здания 25,07 х 15,42 м. Фундамент - монолитная ж/б плита. Наружные несущие стены - монолитный ж/б с утеплением минеральной ватой и отделкой штукатуркой. Внутренние несущие стены - монолитный ж/б. Перегородки - кирпич. Межэтажные перекрытия и перекрытия плоской кровли - монолитные ж/б плиты. Лестница - стеклянная. Окна - алюминиевые.
Генплан застройки участка / Паспорт проекта 7000 руб / 10000 руб
Инженерный раздел (полный) 144200 руб (206000 руб)
Смета на строительство 77250 руб (103000 руб)
Теплотехнический расчет материалов стен Бесплатно
Стоимость проекта со незначительнми изменениями 114700 руб
Стоимость проекта со средними изменениями* 145600 руб
Стоимость проекта со значительными изменениями** 153800 руб

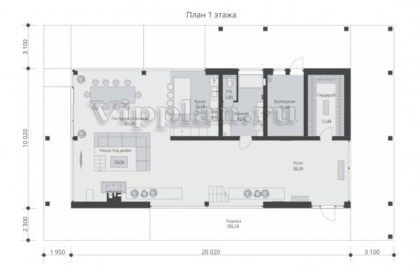
План первого этажа


Холл - 38,39 м2
Ниша под диван - 10,06 м2
Гостиная - 61,04 м2
Кухня - 15,18 м2
С/у - 1,83 м2
Ванная - 10,57 м2
Бойлерная - 11,44 м2
Гардероб - 11,44 м2

Трехэтажный дом с террасами и эксплуатируемой кровлей

Трехэтажный дом с террасами и эксплуатируемой кровлей

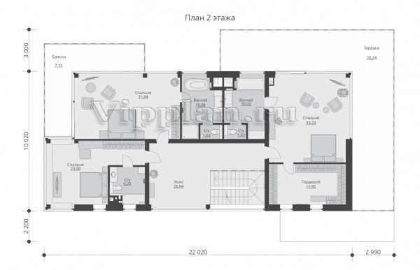
План второго этажа


Холл - 26,94 м2
С/у - 6,25 м2
Спальня - 23,08 м2
Спальня - 31,94 м2
Ванная - 10,08 м2
С/у - 1,63 м2
Ванная - 10,02 м2
С/у - 1,63 м2
Спальня - 33,23 м2
Гардероб - 15,95 м2
Балкон - 23,82 (7,15) м2
Терраса - 67,48 (20,24) м2
Трехэтажный дом с террасами и эксплуатируемой кровлей Трехэтажный дом с террасами и эксплуатируемой кровлей Трехэтажный дом с террасами и эксплуатируемой кровлей Трехэтажный дом с террасами и эксплуатируемой кровлей
Внесение изменений и привязка к участку строительства

В любой из проектов от компании VIPplan - Саров по вашему желанию могут быть внесены изменения в материалы стен, материалы наружной отделки дома, а также будет произведена адаптация проекта под конкретный регион строительства (с учетом грунтов региона, геологических особенностей вашего участка и местных климатических условий) - БЕСПЛАТНО !!! (кроме проектов со скидкой и проектов наших партнеров).

Любой из проектов, размещенных на сайте sarov.vipplan.ru мы можем выполнить из требуемых вам строительных материалов: ячеистый бетон (газобетон, пеноблок), керамоблок, кирпич, шлакоблок, бетонный блок, дерево (брус, клееный брус), каркасная технология (деревянный каркас, металлокаркас (ЛСТК)).

Фасад дома и его наружную отделку так же возможно выполнить с применением различных облицовочных материалов: структурной штукатурки, (с утеплителем и без), сайдингом (пластиковый или металлосайдинг), фиброплитами, кирпича.

 
6 Избранные
проекты

Доставка проектов по России: Москва (Московская область), Санкт-Петербург (Ленинградская область), Краснодар, Ростов-на-Дону, Ставрополь, Сочи, Волгоград, Новосибирск, Белгород, Брянск, Воронеж, Саратов, Хабаровск, Астрахань, Нальчик, Владикавказ, Екатеринбург, Тюмень, Самара, Нижний Новгород, Казань, Пермь, Уфа, Челябинск, Красноярск, Ханты-Мансийск, Иркутск, Курган, Оренбург, Омск, Томск, Барнаул, Новокузнецк, Кемерово, Абакан, Чита, Якутск, Южно-Сахалинск, Петропавловск-Камчатский и страны ближнего зарубежья: Белоруссия, Украина, Казахстан