Добро пожаловать на http://vipplan.ru

Випплан Саров - это тысячи проектов домов в нашем каталоге!

Вы всегда сможете найти для себя проект дома вашей мечты! Даже если этого не случилось, мы готовы в любую минуту предложить проект индивидуального дома.

Забыли пароль?
Вы еще не регистрировались?

Перейдите по ссылке ниже на страницу регистрации.

Регистрация...

Внимание!!!

В проектную документацию могут быть внесены изменения любой сложности, в соответствии в Вашими пожеланиями!

Полезные статьи

Проект дома

Строительство дома начинается с подготовительного этапа, основной частью которого является проект. Разработка дизайнерского проекта сопровождается оформлением документов после выбора участка....

Выбор проекта дома в Сарове. Типовой или индивидуальный?

Строительство дома начинается с выбора проекта. От него будет зависит удобство, комфорт и функциональность Вашего будущего дома. Какой проект выбрать? В каталоге проектов домов VIPplan Саров предоставлен огромный выбор проектов на любой вкус и кошелек. В итоге выбор сводится к покупке типового проекта дома или заказа индивидуального проекта. Для упращения задачи, расскажем о каждом варианте по отдельности...

Проекты домов и коттеджей > Каталог проектов домов > Просторный двухэтажный дом с бассейном Vg2388

Просторный двухэтажный дом с бассейном Vg2388

Просторный двухэтажный дом с бассейном
Зарегистрируйтесь

Проект № Vg2388


Техническое описание
Общая площадь: 481.21 м2
Жилая площадь: 201.97 м2
Высота здания: 10.85 м
Размеры дома: 30.54м×19.94м
Кол-во комнат: 9
Цокольный этаж: нет
Гараж: нет
Мансарда: нет

Kонструкция
Фундамент: ленточный монолитный ж/б
Перекрытия: монолитные ж/б плиты
Материал стен: Газобетон

Архитектурный раздел
Конструктивный раздел
Инженерный раздел
Смета на строительство
АР+КР - 108 000 (Со скидкой 20%)
АР+КР+ИР - 276 350 (Со скидкой 50%)
Модель проекта индивидуального двухэтажного жилого дома с размерами здания 30,54 x 19,94 м. Наружная отделка здания – штукатурка, клинкерная плитка, деревянные панели. Фундамент – ленточный монолитный ж/б. Наружные стены – газобетонные блоки с утеплением минеральной ватой и отделкой. Внутренние стены - газобетонные блоки. Перегородки - газобетонные блоки Пол 1 этажа, межэтажное и чердачное перекрытия - монолитные ж/б плиты. Крыша многоскатная. Кровля – металлочерепица, рулонный полимерно-битумный кровельный материал. Окна — металлопластиковые.
Генплан застройки участка / Паспорт проекта 7000 руб / 10000 руб
Инженерный раздел (полный) 168350 руб (240500 руб)
Смета на строительство 90188 руб (120250 руб)
Теплотехнический расчет материалов стен Бесплатно
Стоимость проекта со незначительнми изменениями 122950 руб
Стоимость проекта со средними изменениями* 159100 руб
Стоимость проекта со значительными изменениями** 168700 руб

План первого этажа


Прихожая — 18,81 м2
Холл — 14,97 м2
Гостиная — 50,22 м2
Столовая — 25,9 м2
Кухня — 21,76 м2
Кладовая — 1,74 м2
Кладовая — 1,74 м2
Кабинет — 18 м2
Коридор — 6,3 м2
Гараж — 48,6 м2
Бойлерная — 13,01 м2
Коридор — 3,8 м2
Спальня — 12,96 м2
С/у — 2,8 м2
Спальня — 12,76 м2
С/у — 3,74 м2
Комната — 43,86 м2
Кладовая — 4,28 м2
Душевая — 3,6 м2
Парилка — 5 м2

Просторный двухэтажный дом с бассейном

Просторный двухэтажный дом с бассейном

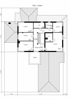
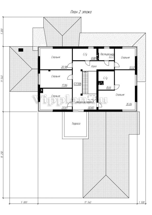
План второго этажа


Холл — 30,8 м2
Спальня — 20,81 м2
Спальня — 17,86 м2
Спальня — 20,98 м2
С/у — 8,88 м2
Постирочная — 5,77 м2
Спальня — 13,32 м24 С/у — 8,66 м2
Спальня — 35,06 м2
Просторный двухэтажный дом с бассейном Просторный двухэтажный дом с бассейном Просторный двухэтажный дом с бассейном Просторный двухэтажный дом с бассейном

Модификации проектов

Внесение изменений и привязка к участку строительства

В любой из проектов от компании VIPplan - Саров по вашему желанию могут быть внесены изменения в материалы стен, материалы наружной отделки дома, а также будет произведена адаптация проекта под конкретный регион строительства (с учетом грунтов региона, геологических особенностей вашего участка и местных климатических условий) - БЕСПЛАТНО !!! (кроме проектов со скидкой и проектов наших партнеров).

Любой из проектов, размещенных на сайте sarov.vipplan.ru мы можем выполнить из требуемых вам строительных материалов: ячеистый бетон (газобетон, пеноблок), керамоблок, кирпич, шлакоблок, бетонный блок, дерево (брус, клееный брус), каркасная технология (деревянный каркас, металлокаркас (ЛСТК)).

Фасад дома и его наружную отделку так же возможно выполнить с применением различных облицовочных материалов: структурной штукатурки, (с утеплителем и без), сайдингом (пластиковый или металлосайдинг), фиброплитами, кирпича.

 
6 Избранные
проекты

Доставка проектов по России: Москва (Московская область), Санкт-Петербург (Ленинградская область), Краснодар, Ростов-на-Дону, Ставрополь, Сочи, Волгоград, Новосибирск, Белгород, Брянск, Воронеж, Саратов, Хабаровск, Астрахань, Нальчик, Владикавказ, Екатеринбург, Тюмень, Самара, Нижний Новгород, Казань, Пермь, Уфа, Челябинск, Красноярск, Ханты-Мансийск, Иркутск, Курган, Оренбург, Омск, Томск, Барнаул, Новокузнецк, Кемерово, Абакан, Чита, Якутск, Южно-Сахалинск, Петропавловск-Камчатский и страны ближнего зарубежья: Белоруссия, Украина, Казахстан