Добро пожаловать на http://vipplan.ru

Випплан Саров - это тысячи проектов домов в нашем каталоге!

Вы всегда сможете найти для себя проект дома вашей мечты! Даже если этого не случилось, мы готовы в любую минуту предложить проект индивидуального дома.

Забыли пароль?
Вы еще не регистрировались?

Перейдите по ссылке ниже на страницу регистрации.

Регистрация...

Внимание!!!

В проектную документацию могут быть внесены изменения любой сложности, в соответствии в Вашими пожеланиями!

Полезные статьи

Уклон кровли дома

Чтобы вода быстрее уходила с кровли Вашего дома, скатам необходимо придать уклон, который выражающийся в процентах или градусах и измеряющийся геодезическими инструментами. Уклон кровли обозначает угол наклона ската к горизонту. Чем больше уклон, тем круче крыша. У новомодных зданий наклон кровли делают не очень большим....

Купить готовый проект дома или заказать индивидуальный?

Перед началом строительства дома возникает необходимость в проекте дома и тут встает вопрос: Купить готовый проект дома или заказать индивидуальный на заказ? Каждый из вариантов по своему хорош и имеет как свои плюсы так и минусы...

Проекты домов и коттеджей > Каталог проектов домов > Проект индивидуального одноэтажного жилого дома с мансардой Vg1467

Проект индивидуального одноэтажного жилого дома с мансардой Vg1467

Проект индивидуального  одноэтажного  жилого дома с мансардой
Зарегистрируйтесь

Проект № Vg1467


Техническое описание
Общая площадь: 109.41 м2
Жилая площадь: 73.14 м2
Высота здания: 9.25 м
Размеры дома: 8.1м×8.4м
Кол-во комнат: 5
Цокольный этаж: нет
Гараж: нет
Мансарда: есть

Kонструкция
Фундамент: Ленточный монолитный
Перекрытия: Деревянные балки
Материал стен: Газобетонный блок

Архитектурный раздел
Конструктивный раздел
АР+КР - 48 000 (Со скидкой 20%)
Проект индивидуального одноэтажного жилого дома с мансардой с размерами здания 8,10 x 8,40 м. Наружная отделка здания –фасадная штукатурка. Фундамент – ленточный монолитный ( под несущими стенами). Наружные стены – из газобетонного блока, утеплителя — минеральная вата с фасадной штукатуркой. Внутренние стены - изгазобетонного блока. Перегородки – каркасные с ГКЛ на металлическом каркасе. Пол первого этажа - пол по грунту. Межэтажное перекрытие - деревянные балки. Крыша двухскатная. Кровля – металлочерепица. Окна — металлопластиковые
Генплан застройки участка / Паспорт проекта 7000 руб / 10000 руб
Инженерный раздел (полный) 54500 руб
Смета на строительство 27250 руб
Теплотехнический расчет материалов стен Бесплатно
Стоимость проекта со незначительнми изменениями 57250 руб
Стоимость проекта со средними изменениями* 65500 руб
Стоимость проекта со значительными изменениями** 67600 руб

План первого этажа


Тамбур — 2,72 м2
Бойлерная — 5,38 м2
Холл — 2,99 м2
Кухня — 9,36 м2
С/у — 2,76 м2
Гостиная — 22,87 м2
Спальня — 8,64 м2

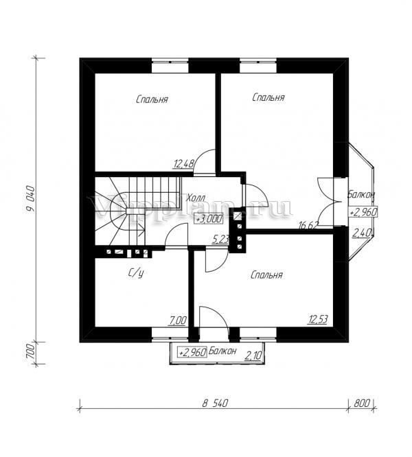
План мансардного этажа


Холл — 5,23 м2
Спальня — 12,48 м2
Спальня — 16,62 м2
Спальня — 12,53 м2
С/у — 7 м2
Проект индивидуального  одноэтажного  жилого дома с мансардой Проект индивидуального  одноэтажного  жилого дома с мансардой Проект индивидуального  одноэтажного  жилого дома с мансардой Проект индивидуального  одноэтажного  жилого дома с мансардой

Модификации проектов

Внесение изменений и привязка к участку строительства

В любой из проектов от компании VIPplan - Саров по вашему желанию могут быть внесены изменения в материалы стен, материалы наружной отделки дома, а также будет произведена адаптация проекта под конкретный регион строительства (с учетом грунтов региона, геологических особенностей вашего участка и местных климатических условий) - БЕСПЛАТНО !!! (кроме проектов со скидкой и проектов наших партнеров).

Любой из проектов, размещенных на сайте sarov.vipplan.ru мы можем выполнить из требуемых вам строительных материалов: ячеистый бетон (газобетон, пеноблок), керамоблок, кирпич, шлакоблок, бетонный блок, дерево (брус, клееный брус), каркасная технология (деревянный каркас, металлокаркас (ЛСТК)).

Фасад дома и его наружную отделку так же возможно выполнить с применением различных облицовочных материалов: структурной штукатурки, (с утеплителем и без), сайдингом (пластиковый или металлосайдинг), фиброплитами, кирпича.

 
6 Избранные
проекты

Доставка проектов по России: Москва (Московская область), Санкт-Петербург (Ленинградская область), Краснодар, Ростов-на-Дону, Ставрополь, Сочи, Волгоград, Новосибирск, Белгород, Брянск, Воронеж, Саратов, Хабаровск, Астрахань, Нальчик, Владикавказ, Екатеринбург, Тюмень, Самара, Нижний Новгород, Казань, Пермь, Уфа, Челябинск, Красноярск, Ханты-Мансийск, Иркутск, Курган, Оренбург, Омск, Томск, Барнаул, Новокузнецк, Кемерово, Абакан, Чита, Якутск, Южно-Сахалинск, Петропавловск-Камчатский и страны ближнего зарубежья: Белоруссия, Украина, Казахстан