Добро пожаловать на http://vipplan.ru

Випплан Саров - это тысячи проектов домов в нашем каталоге!

Вы всегда сможете найти для себя проект дома вашей мечты! Даже если этого не случилось, мы готовы в любую минуту предложить проект индивидуального дома.

Забыли пароль?
Вы еще не регистрировались?

Перейдите по ссылке ниже на страницу регистрации.

Регистрация...

Внимание!!!

В проектную документацию могут быть внесены изменения любой сложности, в соответствии в Вашими пожеланиями!

Полезные статьи

Искусственный камень

Среди современных материалов, особого внимания заслуживает искусственный камень. Естественность и красота натурального камня очевидна. Но нужно реально оценивать свои возможности и присмотреться именно к искусственному камню, так как сам искуственный камень и стоимость производства работ с ним в Сарове значительно дешевле чем натуральный....

Вентиляция в подвале дома

Без подвала или цокольного этажа в частном доме, в наше время, не обойтись. Это полезное для дома помещение должно быть хорошо вентилируемым. В доме с подвалом должна быть хорошая циркуляция воздуха, для сохранения находящихся в нем продуктов. Отсутствие вентиляции  может привести к образованию плесени и сырости не только в подвале, но и во всем доме....

Проекты домов и коттеджей > Каталог проектов домов > Двухэтажный дом с просторной гостиной и зимним садом. Vg1374

Двухэтажный дом с просторной гостиной и зимним садом. Vg1374

Двухэтажный дом с просторной гостиной и зимним садом.
Зарегистрируйтесь

Проект № Vg1374


Техническое описание
Общая площадь: 263.11 м2
Жилая площадь: 87.16 м2
Высота здания: 8.8 м
Размеры дома: 15.46м×15.86м
Кол-во комнат: 5
Цокольный этаж: нет
Гараж: нет
Мансарда: нет

Kонструкция
Фундамент: монолитная плита
Перекрытия: сборные плиты, деревянные балки
Материал стен: Керамоблок

Архитектурный раздел
Конструктивный раздел
АР+КР - 72 000 (Со скидкой 20%)
Двухэтажный дом с просторной гостиной и зимним садом. с размерами здания 15,46 х 15,86 м. Фундамент – монолитная ж/б плита под всей площадью дома с ребрами вверх под несущие стены. Наружные стены – керамические блоки с утеплением мин. ватой и отделкой штукатуркой/деревянными панелями. Внутренние стены - керамические блоки. Перегородки – пустотелый кирпич. Пол 1 этажа - по сборным ж/б плитам. Межэтажное перекрытие - монолитная плита. Чердачное перекрытие - деревянные балки с теплошумоизоляцией.. Крыша многоскатная. Кровля – битумная черепица. Окна — металлопластиковые.
Генплан застройки участка / Паспорт проекта 7000 руб / 10000 руб
Инженерный раздел (полный) 131500 руб
Смета на строительство 65750 руб
Теплотехнический расчет материалов стен Бесплатно
Стоимость проекта со незначительнми изменениями 83400 руб
Стоимость проекта со средними изменениями* 103200 руб
Стоимость проекта со значительными изменениями** 108400 руб

План цокольного этажа


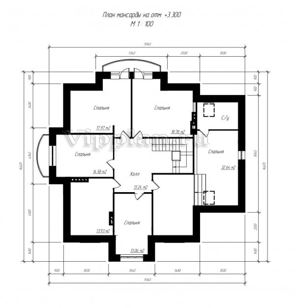
Тамбур - 3,71 м2
Холл - 17,54 м2
Гараж - 42,84 м2
С/у - 4,63 м2
Бойлерная - 10,92 м2
С/у - 3,29 м2
Гостиная - 30,40 м2
Кухня - 9,66 м2
Кабинет - 9,83м2

План первого этажа


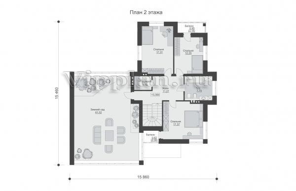
Холл - 11,27 м2
Спальня - 17,37 м2
С/у - 7,75 м2
Спальня - 12,25 м2
Спальня - 17,31 м2
Гардероб - 2,75 м2
Зимний сад - 61,02 м2
Балкон - 0,95 м2 (3,18 м2)
Балкон - 0,62 м2 (2,08 м2)

Двухэтажный дом с просторной гостиной и зимним садом.

Двухэтажный дом с просторной гостиной и зимним садом.

План второго этажа



План мансардного этажа



Двухэтажный дом с просторной гостиной и зимним садом. Двухэтажный дом с просторной гостиной и зимним садом. Двухэтажный дом с просторной гостиной и зимним садом. Двухэтажный дом с просторной гостиной и зимним садом.

Модификации проектов

Внесение изменений и привязка к участку строительства

В любой из проектов от компании VIPplan - Саров по вашему желанию могут быть внесены изменения в материалы стен, материалы наружной отделки дома, а также будет произведена адаптация проекта под конкретный регион строительства (с учетом грунтов региона, геологических особенностей вашего участка и местных климатических условий) - БЕСПЛАТНО !!! (кроме проектов со скидкой и проектов наших партнеров).

Любой из проектов, размещенных на сайте sarov.vipplan.ru мы можем выполнить из требуемых вам строительных материалов: ячеистый бетон (газобетон, пеноблок), керамоблок, кирпич, шлакоблок, бетонный блок, дерево (брус, клееный брус), каркасная технология (деревянный каркас, металлокаркас (ЛСТК)).

Фасад дома и его наружную отделку так же возможно выполнить с применением различных облицовочных материалов: структурной штукатурки, (с утеплителем и без), сайдингом (пластиковый или металлосайдинг), фиброплитами, кирпича.

 
6 Избранные
проекты

Доставка проектов по России: Москва (Московская область), Санкт-Петербург (Ленинградская область), Краснодар, Ростов-на-Дону, Ставрополь, Сочи, Волгоград, Новосибирск, Белгород, Брянск, Воронеж, Саратов, Хабаровск, Астрахань, Нальчик, Владикавказ, Екатеринбург, Тюмень, Самара, Нижний Новгород, Казань, Пермь, Уфа, Челябинск, Красноярск, Ханты-Мансийск, Иркутск, Курган, Оренбург, Омск, Томск, Барнаул, Новокузнецк, Кемерово, Абакан, Чита, Якутск, Южно-Сахалинск, Петропавловск-Камчатский и страны ближнего зарубежья: Белоруссия, Украина, Казахстан